お問い合わせ番号:661
近鉄奈良線 生駒の物件です
沿線/最寄駅 バス/徒歩 所在地 種別
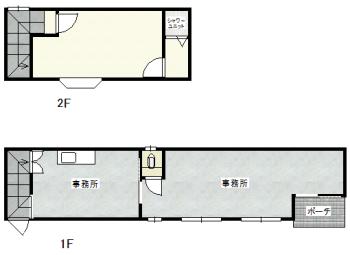
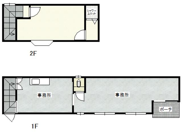
近鉄奈良線 生駒 バス13分/徒歩1分 生駒市南田原町 事務所
賃料 共益費 保証金/解約引 敷金/礼金 専有面積 築年数
7.5万円 0円 ―/― 7.5万円/15万円 53.78m2(16.26坪) 平成10年2月
担当者コメント

道路に面した戸建て店舗なんです。

設備

プロパンガス
トイレ・シャワールーム

建物構造 木造
駐車場 有 1台分付き 
総戸数 1戸
何階部分/何階建 階部分/2階建
損害保険
取引形態 仲介
現況 空家
引渡 即時 

広告有効期限:2026年01月13日/最終更新日:2025年11月13日

生駒の賃貸マンション、賃貸ハイツ、
駐車場の賃貸物件は菅原住建

菅原住建

TEL.0743−74−8543

〒630-0251

奈良県生駒市谷田町876

TEL.0743−74−8543

近鉄奈良線 生駒駅北口より 約4分

菅原住建 地図